
距离团购结束:还有15天时间 106人已报名
129人已参加

2025-09-21
山海之上·双地铁口学府住区72-99㎡3-4房山海悦居——项目基本信息——开发商:深圳市深供金广嘉房地产发展有限公司总占地面积:约0.62万㎡总建筑面积:约4.90万㎡产品类型:住宅可售套数:174套产权年限:住宅70年(2024年-209...阅读全文>
钜惠单价
40972
元/m²
距结束
钜惠单价
40987
元/m²
距结束
钜惠单价
40000
元/m²
距结束
钜惠单价
41010
元/m²
距结束
| 项目地址: 盐田8号线沙头角站C口 | 开发商: 深圳市深供金广嘉房地产发展有限公司 | 售楼处地址: 盐田8号线沙头角站C口 |
| 物业公司: 深圳市合泰物业管理有限公司 | 开盘时间: 2025-09-21 | 交房时间: 2027-03-21 |
| 产权年限: 70年 | 物业类型: 普通住宅 | 车位情况: 暂无资料 |
| 建筑类型: 塔楼 | 计划户数: 174户 | 占地面积: 6200㎡ |
| 物业费用: 4.5元/㎡/月 | 建筑面积: 49000㎡ |
山海之上 · 双地铁口学府住区
72-99㎡3-4房 山海悦居

——项目基本信息——
开 发 商:深圳市深供金广嘉房地产发展有限公司
总占地面积:约0.62万㎡
总建筑面积:约4.90万㎡
产 品 类 型:住宅
可 售 套 数:174套
产 权 年 限:住宅70年(2024年-2094年)
——世界山海,美好嘉悦 10大必买理由——
高实用率 | 盐田新规住宅产品
轻松上车 | 72㎡低总价关内三房
双地铁口 | 1站罗湖,8站福田CBD
口岸资源 | 双口岸,深港半小时便利生活
全能配套 | 步行10分钟醇熟生活圈
学校环伺 | 自带公立幼儿园,名校环伺
山海景观 | 坐拥城市绿肺,享山海景观
匠心品质 | 纯玻璃幕墙公建化住宅
品牌实力 | 合泰集团专注打造豪宅品质标杆
臻装美宅 | 以心筑家,精琢每一寸生活温度
——城芯山海之境,繁华与自然共生——
【比邻区府 位居沙头角核芯腹地】
择址沙头角中心片区,比邻区府,享市政与生活配套,尽享城市核心的便捷与繁华。是城市繁华的汇聚点,也是宜居生活的理想之地。

【双地铁口比邻主干道,拥享双口岸】
直线距离8号线沙头角站/海山站地铁口均约700m,1站罗湖,8站福田CBD。拥享沙头角&莲塘双口岸,快速抵达香港,轻松实现双城生活。
深盐路封面标杆,直连深南大道、滨河大道、北环大道,半小时通达福田、南山。

【丰富商业 一站式满足不同生活需求】
步行15分钟,尽享约35万m²壹海城/ONE MALL购物中心、7万m²精茂城、3万m²广富百货、海岸商业街、中英街等醇熟商业配套。

【护航孩子成长 12年全龄教育资源环伺】
项目自带公立幼儿园,周边林立深圳高级中学盐田学校、田东中学、林园小学等优质学府。
(说明:本项目的学区划分和学位申请以教育局当年公布的招生政策为准)

【山海相拥 自然与繁华共生的理想栖居】
北倚翠绿梧桐山,负氧离子含量高于外区60%,空气质量优良率达100%。南眺辽阔大鹏湾,坐拥19.5公里黄金海岸线。69公里半山公园带串联多个生态公园,更有东和公园、盐田中央公园等多公园环伺,宜居指数全市第一。

——百万旧改赋能沙头角,铸就璀璨未来——
【盐田百万旧改 田心工业区】
田心旧改作为沙头角深港国际旅游消费合作区的核心项目,以百万级体量重塑城市格局,打造“深港国际消费合作核芯、都市山海商务活力中心”。未来,这里将成为深港融合的桥头堡,吸引高端产业与人才,焕发区域经济活力。

信息来源:美好盐田公众号《深港新“盐”值⑥ | 老旧工业区“破旧赋新” 加速蝶变万象城2.0版》
——凝萃时代美学,缔造高品生活——
【极简美学 镌刻城市经典】
外立面采用真石漆、铝板幕墙及中空LOW-E玻璃,以现代极简美学打造历久弥新的城市地标。
中空LOW-E玻璃公建化立面:有效隔音、阻隔紫外线,营造舒适室内环境;
铝板线条:赋予建筑挺拔质感,外立面精致大气。

【高品公区 悦享高配社区生活】
项目以人性化高定标准,尽心打磨公区及居所,融合东境西韵设计理念,集奢华、现代美学的元素,注重奢华感和仪式感,采用超现代立面风格和艺术弧线角设计打造酒店化品质入户大堂。

【盐田新规住宅产品,72㎡即可做三房】
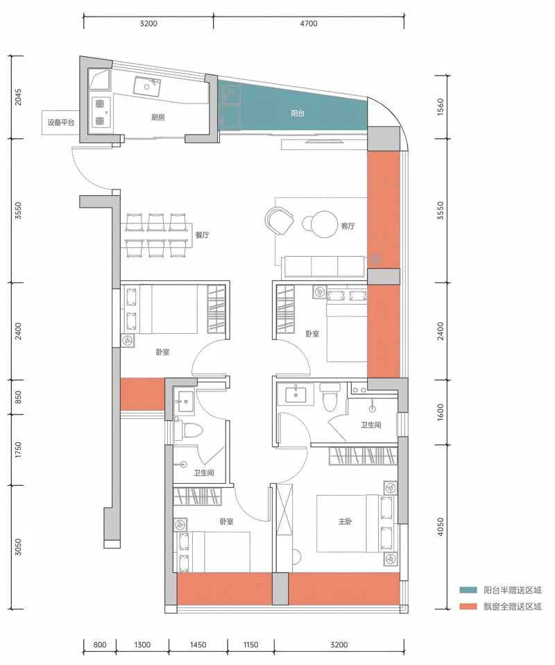
高规格通透户型产品,建面约72-99㎡3-4房,精心打造约2.4m进深阔景阳台,拓展空间更多可能性,为居者提供充足的休闲与活动区域。

户型鉴赏:
7 2㎡ 三房两厅一卫
81㎡三房两厅一卫

8 8㎡ 三房两厅两卫

9 9㎡ 四房两厅两卫

风险提示:
本广告所有文字和图片仅供参考,不构成开发商任何要约与承诺。所有内容均以政府最终审批文件和最终签署的买卖合同及最终实际交付为准。相关宣传资料不排除因政府规划、规定及开发商无法控制、预测的原因而出现变化,本公司亦保留对资料内容修改的权利。关于学校的学区划分、入学条件等以政府部门政策和学校通知为准,本项目不对学校、学区做任何承诺。以上距离为百度直线距离,由百度地图实测得出,请以最新实际数据为准。开发商: 深圳市深供金广嘉房地产发展有限公司;推广名:嘉悦公馆;备案名: 嘉悦公馆
您的姓名 已有119人成功报名团购
计算结果